Cit Turin, Corso Tassoni 4 | appartamento nuovo con terrazzino
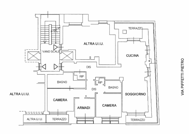
Spettacolare appartamento completamente nuovo e arredato. All’interno della nuova torre “7ower”, ottavo piano con un balcone che gira intorno alla casa e davanti al soggiorno diventa un terrazzino e ci regala una vista bellissima sulla città. Tre arie est-sud-ovest, sole e luce tutto il giorno, ingresso corridoio, salone con cucina ad isola, due camere da letto, camera armadi (volendo cameretta o studio), due bagni completi. Lavanderia, Ripostigli, armadi su misura. L’appartamento viene venduto completamente arredato con arredi di design, aria condizionata, doppi ascensori, portineria. L’appartamento è completamente insonorizzato.Riscaldamento con teleriscaldamento.
Volendo box auto singolo a parte €. 35.000
(No cantina)
Super accessoriato. Vero stile Luxury
Comodissimo per la stazione di Torino Porta Susa, Metropolitana, e tangenziale. La zona è adatta a famiglie con scuole e attività ricreative consolidate.
Libero subito
Posizione
Servizi e caratteristiche
- Aria condizionata
- balcone
- doppi vetri
- lavanderia
- porta blindata
- portineria
- riscaldamento a pavimento
- terrazzo
